Kinderhaus Markt | Child Care at the Marketsquare | Rankweil
Kinderhaus Rankweil Markt | Baukörper mit verschatteten Aussenspielbereichen auf 3 Ebenen
Kinderhaus Rankweil Markt | Gruppenraum Innen | Massivholz und Lehmwände schaffen ein gesundes und natürliches Raumklima
Kinderhaus Rankweil Markt | Gruppenraum Aussen | Massivholz und Lehmwände schaffen ein gesundes und natürliches Raumklima | Jeweils 2 Gruppenräume mit gemeinsamer Spielloggia
Kinderhaus Rankweil Markt | Hausschuh- und Strassenschuhtreppe für optimale Zugänglichkeit aller Innen- und Aussenbereiche
Kinderhaus Rankweil Markt | Belichtung durch das zentrale Stiegenauge
Das neue Kinderhaus Markt in Rankweil bietet Platz für 72 Kinder und ist eng in das Bildungsnetzwerk der Marktgemeinde eingebunden. Im Vordergrund des architektonischen Konzepts steht der ganzjährige Zugang der Kinder zu den Innen- und Außenbereichen auf allen Ebenen und die Orientierung des Kinderhauses als öffentliches Gebäude zum Geschehen im Ortszentrum.
Der Y-förmige Grundriss des Gebäudes entspricht in unterschiedlicher Weise den Ansprüchen, die an das Gebäude gestellt wurden. Zum Einen teilt der ungewöhnliche Grundriss die Außenbereiche der kleinen Parzelle in mehrere differenzierte Flächen. So entstand ein gepflasterter Vorplatz in Eingangsnähe im Nordosten, ein Gastgarten mit Sitzgelegenheiten zum Essen im Freien im Nordwesten und im Süden ein großer thematisch gegliederter Naturspielplatz.
Die ausgeprägte Gliederung des Gebäudes schafft nach Innen klar einteilbare und gut belichtete Bereiche, die sich nach allen Richtungen mit Blickbeziehungen zum Dorf orientieren und das große Volumen an die Höhenentwicklung und Kleinteiligkeit der Umgebung anpassen.
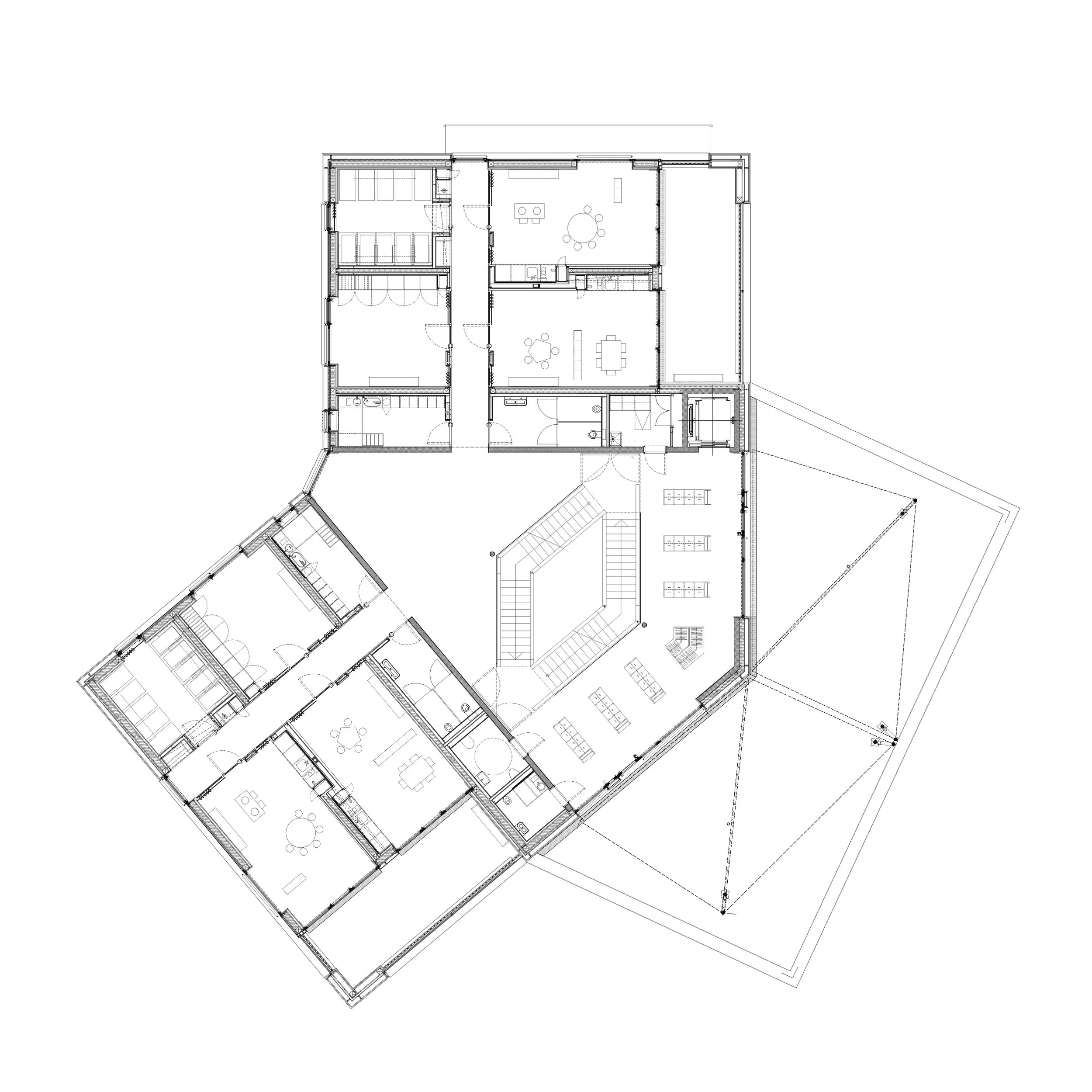
Das Kinderhaus Markt verfügt über drei identische Gruppenbereiche für jeweils 24 Kinder. Ein Bereich enthält zwei Gruppenräume mit Zugang zur gemeinsamen Loggia, einen Ruheraum, einen Ausweichraum sowie Sanitär- und Wickelbereiche. Die Gruppen arbeiten teiloffen miteinander. Ausweichräume werden für unterschiedliche Bildungsangebote genutzt. Eine Snoezelen-Ecke fördert sensomotorische Wahrnehmung und Entspannung.
In Erdgeschoss befindet sich ein Gruppenbereich, der Bewegungsraum, der Mittagstisch und ein Trakt mit Büro- und Beratungsräumen und das Eltern-Café. Im 1. Obergeschoss sind zwei weitere Gruppenbereiche angeordnet sowie eine über die Garderobe zugängliche Spielterrasse. Das 2. Obergeschoss beherbergt einen Kreativraum und den Zugang auf die große Dachterrasse. Beide Terrassen sind mit motorisch betriebenen Sonnensegeln vollständig verschattbar.
Der Erschließungskern in Massivbauweise liegt in der Mitte des Baukörpers und beherbergt eine Doppeltreppe aus Holz für Straßen- und Hausschuhe. Entlang dieser sind die Garderoben den einzelnen Gruppenbereichen zugeordnet. Die Doppeltreppe kann zur Erschließung der Garderoben und Terrassen auch mit Straßenschuhen begangen werden.
Den räumlichen Ansprüchen folgend, wurden die Außenbereiche des Kinderhauses so konzipiert, dass sie die natürliche Neugier der Kinder wecken und ihnen vielseitige Sinneserfahrungen erlauben. Die begrünten Thementerrassen bieten unterschiedliche Erlebnismöglichkeiten – von Bewegung und Klettern bis hin zu Rückzug und Entspannung. Durch den Einsatz heimischer Pflanzen, naturnaher Materialien und vielseitiger Spiel- und Erkundungszonen wurden Räume geschaffen, die den Jahreszeiten folgen und den Kindern eine enge Verbundenheit mit ihrer Umwelt vermitteln.
Die um den Erschließungskern angeordneten Bauteile wurden in Holzelementbauweise errichtet. Der Kern fungiert im Sommer durch Nachauskühlung über automatische Lüftungsflügel als „kühlender Kern“. Für die Fassaden wurde das regionale Fichtenholz aus Beständen der Agrargemeinschaft Rankweil geliefert. Der Innenausbau in Esche, mit hochwertigen Holzwerkstoffen und Klima regulierenden Lehmputzwänden, schafft ein gesundes und natürliches Raumklima. Der hohe ökologische Standard wurde durch die Förderung des Kommunalen Gebäudeausweis sichergestellt. Text Peter Oberdorfer, Christian Schmölz, Gudrun Sturn
Kinderhaus Rankweil Markt | Gebäude am Eck des Marktplatzes | Differenzierte Aussenspielbereiche ums Gebäude und auf den Dachterrassen
Kinderhaus Rankweil Markt | Grundriss Erdgeschoß
1 Kleinkinder Gruppenbereichsmodul
Speiseraum
Bewegungsraum
Verwaltung und Beratung
Garderobe und Durchgang zum Spielgarten
Hausschuh- und Straßenschuhtreppe
Kinderhaus Rankweil Markt | Grundriss 1. Obergeschoß
2 Kleinkinder Gruppenbereichsmodule
Garderobe und Zugang zum Dachspielgarten mit Sonnensegel
Hausschuh- und Straßenschuhtreppe
Kinderhaus Rankweil Markt | Grosses Angebot an differenzierten Aussenspielbereichen
Planung und Realisierung 2022-2025
BGF 2.930M2 BRI 9.020M3 BK 6.5M
Auftraggeber: Marktgemeinde Rankweil
Mitarbeit: Rüya Aydede-Francesko M.Sc. Arch, Tapiwa Mirirai Manase-Rusch M.Sc. Arch, DI Gerhard Giesinger (PL)
Freiraumplanung: Frau Sturn, Ingenieurbüro für Landschaftsplanung und Landschaftsarchitektur, Sulz
Projektsteuerung: DI Thurnher ZT-GmbH, Feldkirch
Tragwerk: GBD ZT GmbH, Dornbirn
Haustechnik: Planungsteam E-Plus GmbH, Egg
Elektrotechnik: Licht und Elektroplanungsbüro Andreas Hecht, Rankweil
Bauphysik & Bauökologie: Spektrum, Dornbirn
KGA Prozessbegleitung: Gemeindverband DI Dietmar Lenz, Dornbirn
Küchenplanung: Pretterhofer Gastronomie und Kältetechnik GmbH, Feldkirch
Brandschutzplanung: IHW-Ingenieurbüro Huber GmbH, Weiler
Bodenmechanik: 3P Geotechnik ZT GmbH, Bregenz
ÖBA, Ausschreibung: Hämmerle.Tschikof, Dornbirn










